Katalog stanova
Stan 1
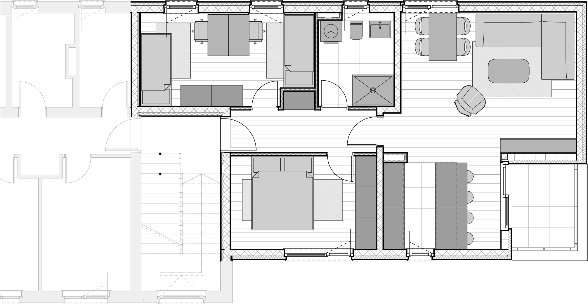
Trosobni stan u prizemlju s vrtom
PROSTOR
NKP (m2)
NPP (m2)
Ulazni prostor
3,05
3,05
Kupaonica
5,60
5,60
Hodnik
1,96
1,96
Spavaća soba 1
11,91
11,91
Spavaća soba 2
9,11
9,11
Dnevni boravak / blagovaonica
25,46
25,46
Kuhinja
5,30
5,30
Natkriveni ulaz
1,65
0,83
Manevarska površina
25,66
6,42
Parkirno mjesto
13,75
2,75
Parkirno mjesto
13,99
2,80
Terasa
14,48
3,62
Vrt
68,59
6,86
Površina stana
85,67
PROSTOR
Ulazni prostor
NKP (m2)
3,05
NPP (m2)
3,05
PROSTOR
Kupaonica
NKP (m2)
5,60
NPP (m2)
5,60
PROSTOR
Hodnik
NKP (m2)
1,96
NPP (m2)
1,96
PROSTOR
Spavaća soba 1
NKP (m2)
11,91
NPP (m2)
11,91
PROSTOR
Spavaća soba 2
NKP (m2)
9,11
NPP (m2)
9,11
PROSTOR
Dnevni boravak / blagovaonica
NKP (m2)
25,46
NPP (m2)
25,46
PROSTOR
Kuhinja
NKP (m2)
5,30
NPP (m2)
5,30
PROSTOR
Natkriveni ulaz
NKP (m2)
1,65
NPP (m2)
0,83
PROSTOR
Manevarska površina
NKP (m2)
25,66
NPP (m2)
6,42
PROSTOR
Parkirno mjesto
NKP (m2)
13,75
NPP (m2)
2,75
PROSTOR
Parkirno mjesto
NKP (m2)
13,99
NPP (m2)
2,80
PROSTOR
Terasa
NETO KORISNA POVRŠINA (m2)
14,48
NPP (m2)
3,62
PROSTOR
Vrt
NKP (m2)
68,59
NPP (m2)
6,86
Površina stana
85,67


Stan 2
Četverosobni stan na prvom katu
PROSTOR
NKP (m2)
NPP (m2)
Ulazni prostor
6,44
6,44
Kupaonica
4,65
4,65
Gospodarstvo
4,10
4,10
Spavaća soba 1
10,26
10,26
Spavaća soba 2
9,62
9,62
Spavaća soba 3
9,62
9,62
Dnevni boravak / blagovaonica
25,75
25,75
Kuhinja
5,76
5,76
Loggia
11,80
8,85
Površina stana
85,05
PROSTOR
Ulazni prostor
NKP (m2)
6,44
NPP (m2)
6,44
PROSTOR
Kupaonica
NKP (m2)
4,65
NPP (m2)
4,65
PROSTOR
Gospodarstvo
NKP (m2)
4,10
NPP (m2)
4,10
PROSTOR
Spavaća soba 1
NKP (m2)
10,26
NPP (m2)
10,26
PROSTOR
Spavaća soba 2
NKP (m2)
9,62
NPP (m2)
9,62
PROSTOR
Spavaća soba 3
NKP (m2)
9,62
NPP (m2)
9,62
PROSTOR
Dnevni boravak / blagovaonica
NKP (m2)
25,75
NPP (m2)
25,75
PROSTOR
Kuhinja
NKP (m2)
5,76
NPP (m2)
5,76
PROSTOR
Loggia
NKP (m2)
11,80
NPP (m2)
8,85
Površina stana
85,05
Stan 3
Trosobni stan na prvom katu
PROSTOR
NKP (m2)
NPP (m2)
Ulazni prostor
5,66
5,66
Kupaonica
5,35
5,35
Spavaća soba 1
11,37
11,37
Spavaća soba 2
13,11
13,11
Dnevni boravak / blagovaonica
25,08
25,08
Kuhinja
5,30
5,30
Balkon
4,34
2,17
Površina stana
68,04
PROSTOR
Ulazni prostor
NKP (m2)
5,66
NPP (m2)
5,66
PROSTOR
Kupaonica
NKP (m2)
5,35
NPP (m2)
5,35
PROSTOR
Spavaća soba 1
NKP (m2)
11,37
NPP (m2)
11,37
PROSTOR
Spavaća soba 2
NKP (m2)
13,11
NPP (m2)
13,11
PROSTOR
Dnevni boravak / blagovaonica
NKP (m2)
25,08
NPP (m2)
25,08
PROSTOR
Kuhinja
NKP (m2)
5,30
NPP (m2)
5,30
PROSTOR
Balkon
NKP (m2)
4,34
NPP (m2)
2,17
Površina stana
68,04


Stan 4
Četverosobni stan na drugom katu
PROSTOR
NKP (m2)
NPP (m2)
Ulazni prostor
8,44
8,44
Kupaonica
4,65
4,65
Gospodarstvo
3,65
3,65
Spavaća soba 1
10,26
10,26
Spavaća soba 2
9,62
9,62
Spavaća soba 3
9,62
9,62
Ostava
4,14
4,14
Dnevni boravak / blagovaonica
25,75
25,75
Kuhinja
5,76
5,76
Loggia
11,48
8,61
Krovna terasa
101,90
25,46
Površina stana
115,96
PROSTOR
Ulazni prostor
NKP (m2)
8,44
NPP (m2)
8,44
PROSTOR
Kupaonica
NKP (m2)
4,65
NPP (m2)
4,65
PROSTOR
Gospodarstvo
NKP (m2)
3,65
NPP (m2)
3,65
PROSTOR
Spavaća soba 1
NKP (m2)
10,26
NPP (m2)
10,26
PROSTOR
Spavaća soba 2
NKP (m2)
9,62
NPP (m2)
9,62
PROSTOR
Spavaća soba 3
NKP (m2)
9,62
NPP (m2)
9,62
PROSTOR
Ostava
NKP (m2)
4,14
NPP (m2)
4,14
PROSTOR
Dnevni boravak / blagovaonica
NKP (m2)
25,75
NPP (m2)
25,75
PROSTOR
Kuhinja
NKP (m2)
5,76
NPP (m2)
5,76
PROSTOR
Loggia
NKP (m2)
11,48
NPP (m2)
8,61
PROSTOR
Krovna terasa
NKP (m2)
101,90
NPP (m2)
25,46
Površina stana
115,96
Stan 5
Trosobni stan na drugom katu
PROSTOR
NKP (m2)
NPP (m2)
Ulazni prostor
5,18
5,18
Kupaonica
5,37
5,37
Spavaća soba 1
11,37
11,37
Spavaća soba 2
7,66
7,66
Dnevni boravak / blagovaonica
25,08
25,08
Kuhinja
5,30
5,30
Balkon
4,34
2,17
Površina stana
62,13
PROSTOR
Ulazni prostor
NKP (m2)
5,18
NPP (m2)
5,18
PROSTOR
Kupaonica
NKP (m2)
5,37
NPP (m2)
5,37
PROSTOR
Spavaća soba 1
NKP (m2)
11,37
NPP (m2)
11,37
PROSTOR
Spavaća soba 2
NKP (m2)
7,66
NPP (m2)
7,66
PROSTOR
Dnevni boravak / blagovaonica
NKP (m2)
25,08
NPP (m2)
25,08
PROSTOR
Kuhinja
NKP (m2)
5,30
NPP (m2)
5,30
PROSTOR
Balkon
NKP (m2)
4,34
NPP (m2)
2,17
Površina stana
62,13

Opis zgrade
Konstrukcija
Zgrada je izvedena kao armirano-betonska konstrukcija s AB pločama i zidovima koji osiguravaju visoku stabilnost i potresnu otpornost.
Pregradni zidovi u stanovima izvedeni su kao gips-kartonski s mineralnom vunom.
Krov je ravan, toplinski izoliran, hidroizoliran TPO folijom, dijelom prohodan, dijelom neprohodan.
Fasada i energetska učinkovitost
Fasada je izvedena ETICS sustavom s toplinskom izolacijom (EPS/MW 10 cm) i silikonskom dekorativnom žbukom.
Vanjska PVC stolarija s troslojnim IZO staklom i aluminijskim roletama dodatno poboljšava energetsku učinkovitost.
Unutarnje uređenje
Podovi: gotovi troslojni parket debljine 14mm u boravcima i sobama.
Unutarnja stolarija: glatka bijela vrata, visine 230cm.
Završne obrade: zidovi gletani i bojani, u kupaonicama keramika do stropa.
Ulazna vrata: protuprovalna, s dodatnom zvučnom izolacijom i modernim 3D panelom.
Sanitarna oprema
U kupaonicama je ugrađena visokokvalitetna oprema: walk-in tuš s paravanom, umivaonik s ormarićem i ogledalom, konzolna WC školjka s podžbuknim vodokotlićem te električni bojler.
Grijanje, hlađenje i ventilacija
Stanovi su opremljeni multi-split klima uređajima (dnevni + sve spavaće sobe). Kupaonice imaju električno podno grijanje. Sanitarni prostor se ventilira preko kupaonskog ventilatora, a u kuhinji je predviđen priključak za napu.
Elektroinstalacije i oprema
Svaki stan ima vlastito brojilo (priključna snaga 5,75-7,36 kW ovisno o veličini stana).
Parkirna mjesta
Uz zgradu je ukupno 10 parkirnih mjesta s pristupom iz Ulice Ante Trumbića:
- 5 natkrivenih ispod volumena kata
- 5 nenatkrivenih
Održavanje
Kupci prilikom preuzimanja stana dobivaju knjižicu s uputama o korištenju i održavanju prostora.

Galerija



Heading

Lokacija
Ul. Ante Trumbića 5A
23000, Zadar
